SOLLICH ARCHITEKTEN
Kontakt
|
Impressum und Datenschutz
Projekte
Wohnen
Industrie und Gewerbe
Sonderbauten
Innenausbauten
Möbel
Entwurfsstudien
Städtebauliche Planungen
Wettbewerbe
Vita
Forschung und Lehre
Vorträge
Lehrtätigkeit
Publikationen
Ausstellungen
Auszeichnungen
Leistungsspektrum
Ausstattung
Sollich Architekten
>
Projekte
>
Entwurfsstudien
>
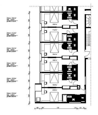
Umbau eines Wohnhochhauses zu einem Hotel
>
Zeichnungen
SMS
Umbau eines Wohnhochhauses zu einem Hotel
Daten
|
Zeichnungen
schwarz
weiß